西条市・新居浜市の不動産なら
当社へおまかせください。

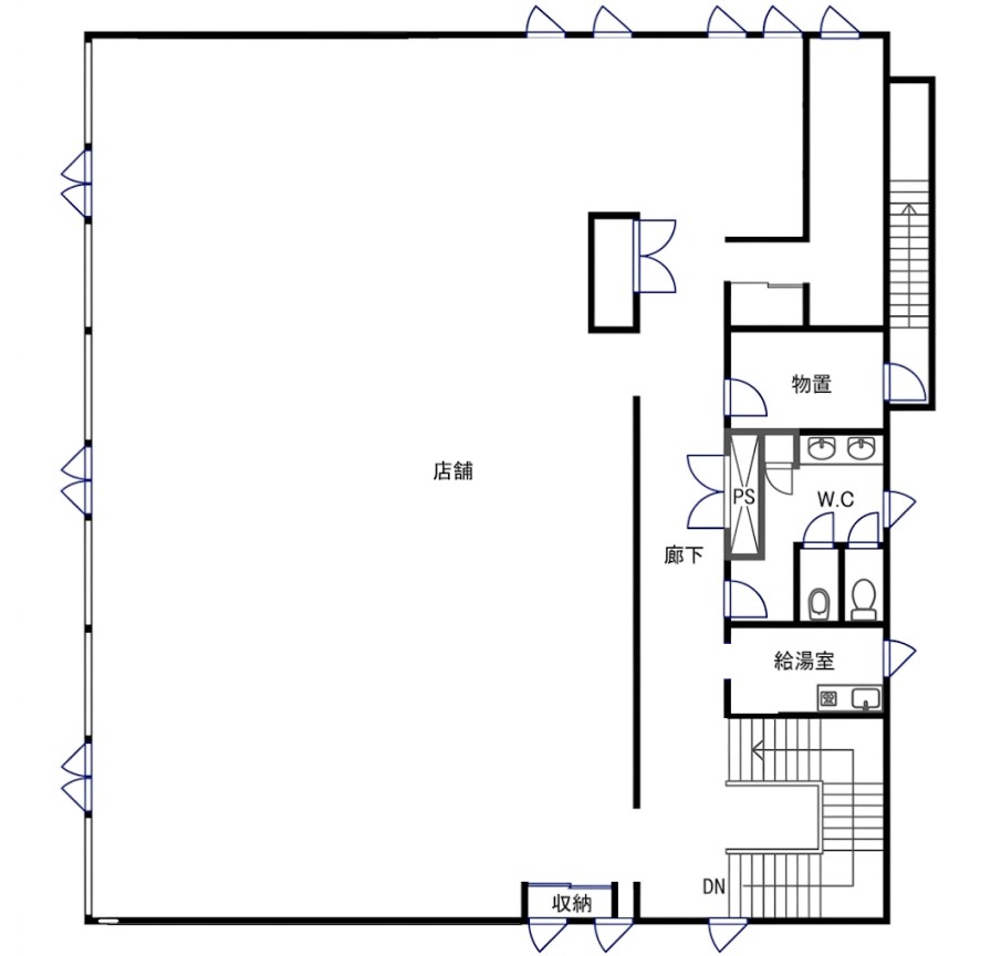
大町店舗・事務所 2F

事業用事務所
賃料
297,000

※図面・外観パースは概略です。現況と異なる場合は現況優先します

物件情報

基本情報

店舗形態
事業用事務所
オススメ業種
オフィスワーク・習い事教室など
物 件 名
大町店舗・事務所 2F
物件の状態
引越し時期
相談
契約形態と期間
2年間

所在地・交通

所 在 地
西条市大町704-1
交 通 1
JR伊予西条駅まで徒歩約9分
交 通 2

賃 料

賃 料
297,000円(税込)
敷金礼金等
敷金:3カ月 礼金:1カ月 仲介手数料:1カ月 

建 物

建物構造
鉄筋コンクリート
建物階建て
2階建
施工年月
1998年5月1日
募集物件の階数
2階
契約面積
286.05㎡
用途地域
商業地域

設 備

エアコン
-
ト イ レ
有り

駐 車 場

状 況
有り:4,400円/1台

取引情報

取引態様
仲介
手数料配分
元付:50% 客付:50%

そ の 他

備 考
・2階フロアのみのテナント物件です
・共益費:11,000円/月
・現状渡し
・分割相談可

取り扱い店舗

西条店

0897-56-0606

〒793-0042 愛媛県西条市喜多川269-4

定休日/水曜日

営業時間/10:00~18:00

新着物件情報

愛媛県西条市・新居浜の土地情報

愛媛県西条市・新居浜の中古物件